

01
城市之间,轻盈入场
项目位于北京 CBD 主轴线中段,距天安门东侧仅五公里,南临中心公园,北望北京第一高楼 -- 中国尊。塔楼与绿地之间的过渡带,被赋予了极为克制的尺度限制 -- 建筑高度不得超过 41 米。在这片寸土寸金的区域,文化中心并未试图“比高",而是以“比轻”的策略,选择了城市对话而非视觉争夺。
建筑由两座镜面“文化容器”构成,中间以通透的玻璃中庭串联,整体体量向南倾斜9度。这一设计策略,首先是在姿态上向南侧中央公园敞开,最大程度地将绿色景观纳入镜面立面之中。同时,这一角度亦有效避免了垂直幕墙常见的光污染问题一-通过倾斜设计,建筑将阳光反射控制在可接受范围内,降低了对周边建筑的干扰,使其成为城市肌理中的温和参与者。
与此同时,这一"前倾“姿态在城市天际线中,与 528 米高的中国尊构成视觉对话。高低错落之间,通过通透中庭形成一条南北向中轴视廊,自北向南依次串联塔楼、文化中心与中央公园,构成 CBD 核心区"一轴三景”的空间秩序。





© 朱雨萝
02
立体链接:功能融合与流线组织
CBD 文化中心以“东西双体量 + 中央中庭"构建复合功能体系:西侧为展览、演出与沉浸式体验空间,东侧为会议、宴会与社交场所。两翼通过六层通高的中庭贯通,空中连廊与坡道织就立体流线形成动态而多维的文化漫步路径
所有垂直交通系统一电梯、楼梯、坡道与观景连桥 -- 集中布罟于中庭通透体量中,不仅提升效率,也将建筑结构与人流动线展现为“可被观看的空间剧场",使公共活动本身成为建筑叙事的一部分。地面层架空并全面开放,连接城市人流,形成一个面向市民的“文化客厅"。咖啡厅、书店与展摊可自然外延,激活街区肌理,实现文化与生活的深度交融。地下一至五层则整合商业、机电、停车等配套,并联通周边塔楼及地下交通系统,实现“地上一地下"一体化连接,拓展建筑的城市维度。

概念草图 © Studio Fuksas +北京市建筑设计研究院

© 朱雨萝

© 朱雨萝

© 朱雨萝
03
科技与生态交融的“未来体”
项目获得 LEED 与中国绿色建筑双认证,体现我们对"可持续城市文化载体”的理解。项目在建筑表皮系统、热能策略、雨水与中水回收°、光伏系统等方面做了全面整合:屋顶光伏板年发电量约58MWh,温差水循环与辐射板系统共同构建“等效热质",建筑内全年保持舒适恒温:雨水回收系统实现用水节约约 70%。这些技术不仅隐藏于结构之中,更悄然定义了城市公共建筑的新生态标准。

模型照片 © Studio Fuksas +北京市建筑设计研究院

© 朱雨萝

© 朱雨萝
04
建筑叙事:容器·镜面·舞台
北京 CBD 文化中心不仅是一个物理空间,更是一种多重叙事的交汇:
容器(Container):承载文化活动,展览、演出、对话与社交;
镜面(Mirror):反射城市与人流,回应都市日常节奏;
舞台(Stage):激发公共互动,让建筑与城市公演。
在这里,建筑不再是静态的物体,而是一个正在发生的、面向未来的公共文化事件。它不抢镜,却始终在场;它不喧哗,却拥有最深的共鸣。

© 朱雨萝
05
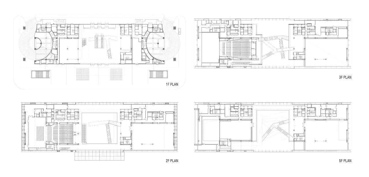
项目图纸

区位分析图 © Studio Fuksas +北京市建筑设计研究院

各层平面图 © Studio Fuksas +北京市建筑设计研究院

剖面图© Studio Fuksas +北京市建筑设计研究院

模型照片 © Studio Fuksas +北京市建筑设计研究院