

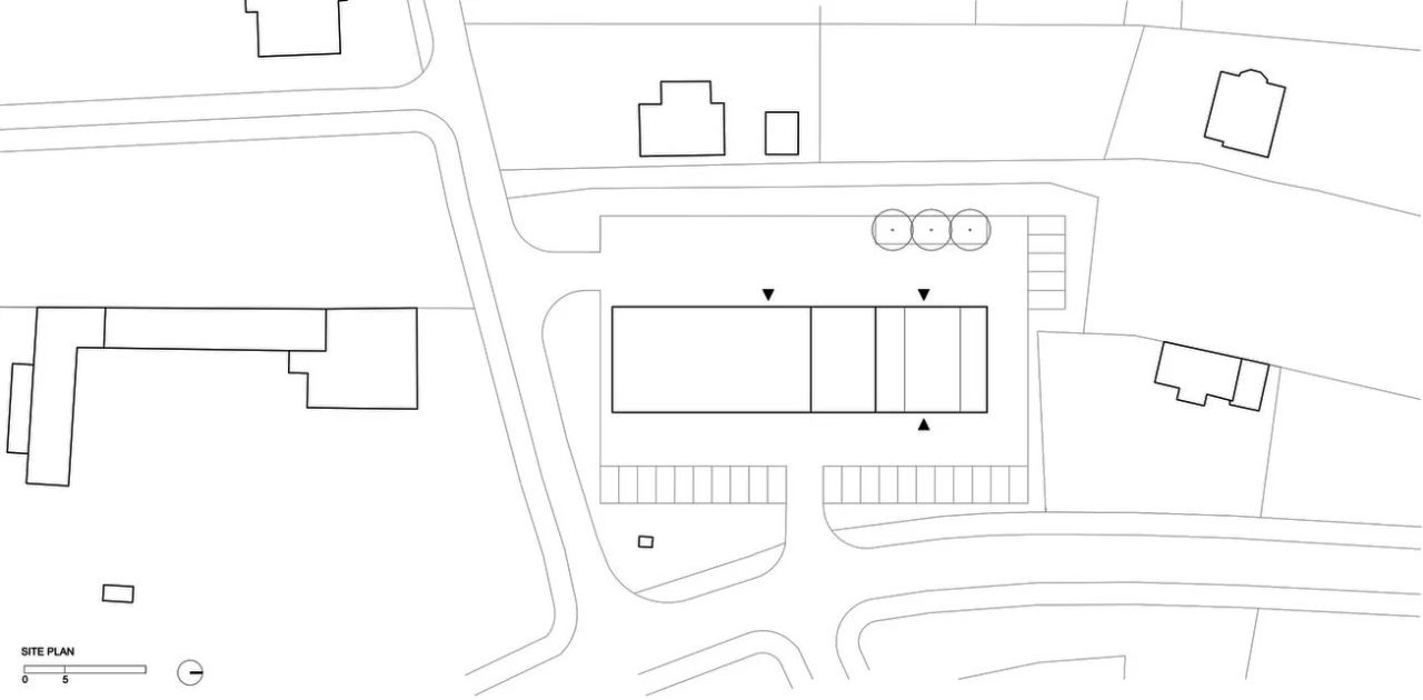
Gambit是一家专业的管道配送公司,这座办公仓库大楼,作为其独特的展示,面积1285m。

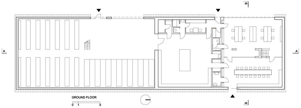
这座建筑的三个主要功能--仓库、准备订单的车间和办公区--都体现在它的形式上。一个两层斜墙的部分是办公室,一个较低的部分是车间,而较高的长方体是一个没有供暖的仓库。管道的布置方式决定了屋顶的坡度。管道的倾斜布局创建了唯一可能的倾斜角度,该角度定义了建筑这部分的形状。带斜屋顶的办公区在二楼进行了修整,以保持在当地分区计划设定的高度限制范围内,因此不需要额外的体积。二楼的斜屋顶办公区进行了修整,以符合当地的分区高度限制,并避免产生不必要的体积。

里面材料选用了原铝板,这不仅更便宜,而且在之前的项目中也得到了验证,如OUTrial House、Unikato和Konieczny's Ark。这种材料随着时间的推移会产生光泽,呈现出一种让人联想到混凝土的哑光、原始的特征。重要的是,这种板材非常耐用,几乎坚不可摧,易于维护。

传统的窗户和天窗使室内光线充足。在一楼的办公空间里,员工们有经典的玻璃窗,可以看到停车场雕刻出来的小花园。上层的存储区和辅助房间需要沿着外墙的灵活空间,由天窗照亮。该建筑具有严格的工业功能,主要周围是汽车和卡车的停车场。




















