

01
Light entry between cities
The project is located in the middle section of the main axis of Beijing CBD, only five kilometers east of Tiananmen Square, south of the Central Park, and north of the tallest building in Beijing - China Zun. The transition zone between the tower and the green space is given extremely restrained scale restrictions - the building height must not exceed 41 meters. In this area where every inch of land is precious, the cultural center did not attempt to "compare", but instead adopted a strategy of "comparing lightly", choosing urban dialogue rather than visual competition.
The building consists of two mirrored 'cultural containers', connected by a transparent glass atrium in the middle, with the overall volume tilted 9 degrees south. This design strategy first opens up to the central park on the south side in terms of posture, maximizing the incorporation of green landscapes into the mirrored facade. At the same time, this angle also effectively avoids the common problem of light pollution in vertical curtain walls - through inclined design, the building controls the reflection of sunlight within an acceptable range, reducing interference with surrounding buildings and making them gentle participants in the urban texture.
At the same time, this "forward leaning" posture forms a visual dialogue with the 528 meter high Chinese Zun in the city skyline. Between the high and low, a north-south central axis visual corridor is formed through a transparent atrium, connecting the tower, cultural center, and central park from north to south, forming a spatial order of "one axis, three scenery" in the CBD core area.





© Zhu Yuluo
02
立体链接:功能融合与流线组织Stereoscopic linking: functional integration and streamlined organization
。The CBD Cultural Center is built with a composite functional system of "east-west dual volume+central atrium": the west side is an exhibition, performance, and immersive experience space, and the east side is a conference, banquet, and social venue. The two wings are connected by a six story atrium, and the aerial corridor and ramp weave a three-dimensional streamline to form a dynamic and multi-dimensional cultural walking path.
All vertical transportation systems, including elevators, stairs, ramps, and observation bridges, are centrally arranged in the transparent volume of the atrium, which not only improves efficiency but also presents the building structure and pedestrian flow as a "space theater that can be viewed", making public activities themselves a part of the building narrative. The ground floor is elevated and fully open, connecting urban pedestrian flow and forming a "cultural living room" facing citizens. Coffee shops, bookstores, and exhibition stalls can naturally extend, activate the texture of the block, and achieve a deep integration of culture and life. The underground floors one to five integrate commercial, mechanical and electrical, parking and other supporting facilities, and connect surrounding towers and underground transportation systems to achieve an integrated connection of "above ground and underground", expanding the urban dimension of the building.

Concept sketch © Studio Fuksas+Beijing Institute of Architectural Design and Research

© Zhu Yuluo

© Zhu Yuluo

© Zhu Yuluo
03
The 'Future Body' of Technology and Ecology Integration
The project has obtained dual certifications from LEED and China Green Building, reflecting our understanding of "sustainable urban cultural carriers". The project has comprehensively integrated building surface systems, thermal energy strategies, rainwater and reclaimed water recycling, photovoltaic systems, and other aspects: the annual power generation of rooftop photovoltaic panels is about 58MWh, and the temperature difference water circulation and radiation panel system jointly construct "equivalent heat mass". The building maintains a comfortable and constant temperature throughout the year. The rainwater recycling system achieves water conservation of about 70%. These technologies are not only hidden in the structure, but also quietly define a new ecological standard for urban public buildings.

Model photo © Studio Fuksas+Beijing Institute of Architectural Design and Research

© Zhu Yuluo

© Zhu Yuluo
04
Architectural Narrative: Container, Mirror, Stage
The Beijing CBD Cultural Center is not only a physical space, but also a convergence of multiple narratives:
Container: carrying cultural activities, exhibitions, performances, dialogues, and social interactions;
Mirror: Reflecting the city and people, responding to the daily rhythm of the city;
Stage: Inspire public interaction and enable architecture and urban performances.
Here, architecture is no longer a static object, but an ongoing, future oriented public cultural event. It doesn't steal the spotlight, but it is always present; It is not noisy, but it has the deepest resonance.

© Zhu Yuluo
05
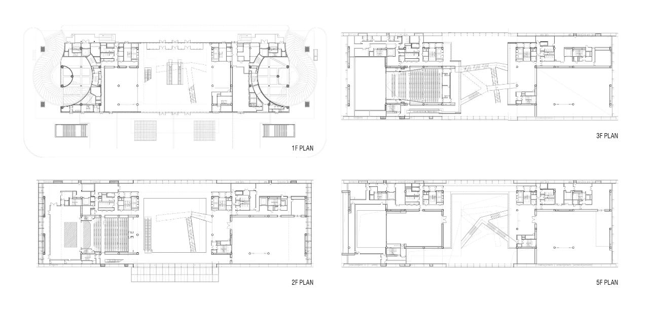
Project drawings

Location analysis map © Studio Fuksas+Beijing Institute of Architectural Design and Research

Floor plan of each floor © Studio Fuksas+Beijing Institute of Architectural Design and Research

Sectional view © Studio Fuksas+Beijing Institute of Architectural Design and Research

Model photo © Studio Fuksas+Beijing Institute of Architectural Design and Research